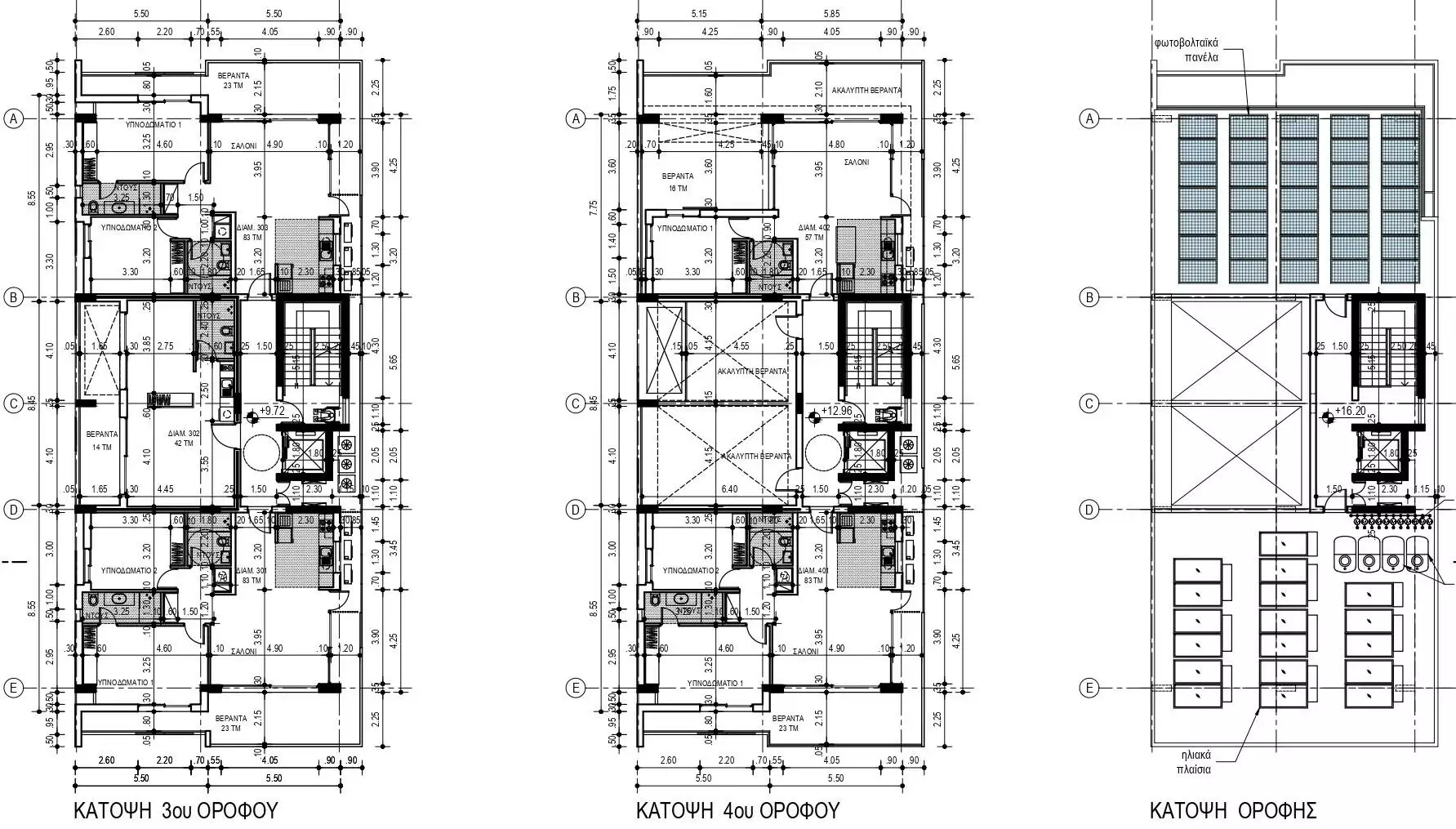
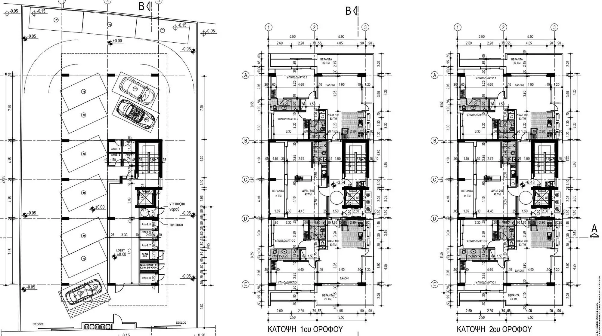
ΔΙΑΜΕΡΙΣΜΑ ΔΥΟ ΥΠΝΟΔΩΜΑΤΙΩΝ ΡΕΤΙΡΕ 140m2 ΣΤΗΝ ΑΓΛΑΝΤΖΙΑ.
Στην καρδιά της Αγλαντζιάς, το πολυτελές αυτό ρετιρέ δύο υπνοδωματίων συνδυάζει μοντέρνο σχεδιασμό, λειτουργικότητα και ενεργειακή αποδοτικότητα. Με καθαρό εσωτερικό εμβαδόν 80 τ.μ. και ευρύχωρη βεράντα 60 τ.μ., το διαμέρισμα προσφέρει άνετους και φωτεινούς χώρους διαβίωσης, καλυμμένο χώρο στάθμευσης, αποθήκη και υψηλής ποιότητας χαρακτηριστικά όπως en-suite master bedroom, ιταλική κουζίνα, πόρτες και ερμάρια κορυφαίας ποιότητας. Η ενεργειακή κλάση Α, τα εγκατεστημένα φωτοβολταϊκά NET METERING και οι ηλιακοί συλλέκτες για ζεστό νερό εξασφαλίζουν χαμηλότερο ενεργειακό κόστος και μέγιστη άνεση διαβίωσης.
Το έργο δίνει έμφαση στην πολυτέλεια και τη λειτουργικότητα, με κινητά σκίαστρα, πρόνοια για ηλεκτρική θέρμανση και κλιματισμό σε όλους τους χώρους, ενώ παράλληλα προσφέρει θυροτηλεόραση και σύγχρονη αισθητική με λειτουργική εσωτερική διαρρύθμιση. Χρησιμοποιούνται υλικά κατασκευής υψηλών προδιαγραφών, είδη υγιεινής και κεραμικά κορυφαίας ποιότητας. Το έργο βρίσκεται υπό ανέγερση με εκτιμώμενη παράδοση τον Οκτώβριο του 2025, προσφέροντας μια μοναδική ευκαιρία κατοικίας για όσους αναζητούν υψηλής ποιότητας διαμέρισμα σε προνομιακή τοποθεσία.



Για να παρέχουμε τις καλύτερες εμπειρίες, χρησιμοποιούμε τεχνολογίες όπως τα cookies για την αποθήκευση ή/και την πρόσβαση σε πληροφορίες συσκευής. Η συναίνεση σε αυτές τις τεχνολογίες θα μας επιτρέψει να επεξεργαζόμαστε δεδομένα όπως η συμπεριφορά περιήγησης ή μοναδικά αναγνωριστικά σε αυτόν τον ιστότοπο. Η μη συναίνεση ή η ανάκληση της συγκατάθεσης μπορεί να επηρεάσει αρνητικά ορισμένα χαρακτηριστικά και λειτουργίες.