EPINAL COURT 21 – AGIOS ANTONIOS NICOSIA

Μοντέρνα Διαμερίσματα 1 & 2 Υπνοδωματίων στον Άγιο Αντώνιο – Υπό Ανέγερση στη Λευκωσία

Σύγχρονη Ζωή στο Κέντρο της Πόλης

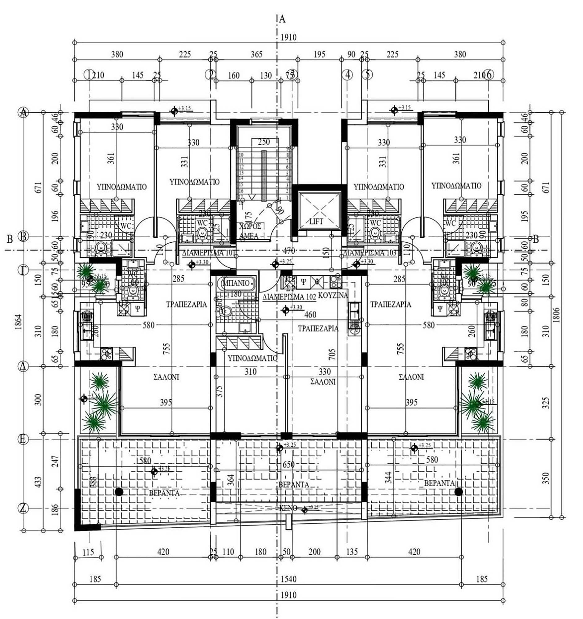
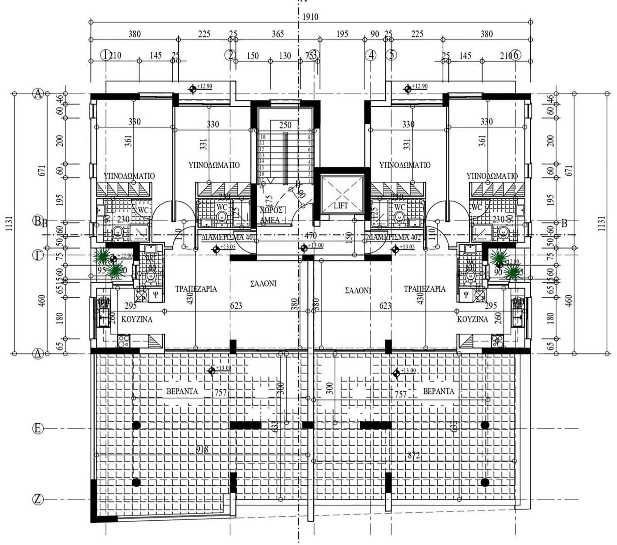
Το EPINAL COURT 21 βρίσκεται στον Άγιο Αντώνιο, στην καρδιά της Λευκωσίας, και προσφέρει μια σειρά από μοντέρνα διαμερίσματα ενός και δύο υπνοδωματίων, καθώς και πολυτελές ρετιρέ. Με έμφαση στον σύγχρονο σχεδιασμό και τη λειτουργικότητα, όλα τα διαμερίσματα διαθέτουν en-suite υπνοδωμάτια, καλυμμένο χώρο στάθμευσης και αποθήκη. Η ποικιλία στις διαστάσεις – από 51 τ.μ. έως και 87 τ.μ. εσωτερικού χώρου – καλύπτει τις ανάγκες κάθε σύγχρονου νοικοκυριού ή επαγγελματία.

Με ενεργειακή απόδοση Α, φωτοβολταϊκά συστήματα και ηλιακούς συλλέκτες, τα διαμερίσματα εξασφαλίζουν βιωσιμότητα και εξοικονόμηση ενέργειας. Η υψηλή ποιότητα κατασκευής αποτυπώνεται σε κάθε λεπτομέρεια: από την κουζίνα, τα ερμάρια και τις πόρτες, έως το πλυσταριό και την προηγμένη θυροτηλεόραση. Η μοντέρνα αρχιτεκτονική και η πρακτική εσωτερική διαρρύθμιση προσφέρουν ένα ολοκληρωμένο πακέτο κατοικίας για όσους επιθυμούν να ζήσουν στο κέντρο της πόλης με άνεση και στυλ.

ΤΡΙΣΔΙΑΣΤΑΤΗ ΑΠΕΙΚΟΝΙΣΗ
ΧΑΡΑΚΤΗΡΙΣΤΙΚΑ & ΠΑΡΟΧΕΣ
ΔΙΕΥΘΥΝΣΗ
ΓΡΑΨΤΕ ΜΑΣ