Πολυτελή διαμερίσματα 1 &2 Υπνοδωματίων στην Παλουριώτισσα Απόλλωνος 3 Λευκωσία.
Στην Παλουριώτισσα, στην οδό Απόλλωνος 3 στη Λευκωσία, το Έργο EPINAL 22 αποτελεί μια σύγχρονη οικιστική ανάπτυξη που συνδυάζει μοντέρνα αρχιτεκτονική, υψηλή ποιότητα κατασκευής και άριστη τοποθεσία. Το έργο βρίσκεται σε προνομιακό σημείο με εύκολη και άμεση πρόσβαση στο κέντρο της πόλης, κοντά στην Υπεραγορά Lidl στη Λεωφόρο Κένεντυ, ενώ εξασφαλίζει άνετη σύνδεση με τα πανεπιστήμια Frederick και Πανεπιστήμιο Κύπρου μέσω της λεωφόρου προς Αγλαντζιά. Η ενεργειακή απόδοση κλάσης Α, το εγκατεστημένο σύστημα φωτοβολταϊκών στους κοινόχρηστους χώρους και η προηγμένη θυροτηλεόραση με έλεγχο από κινητό αναβαθμίζουν σημαντικά την ποιότητα και την ασφάλεια της καθημερινής διαβίωσης.
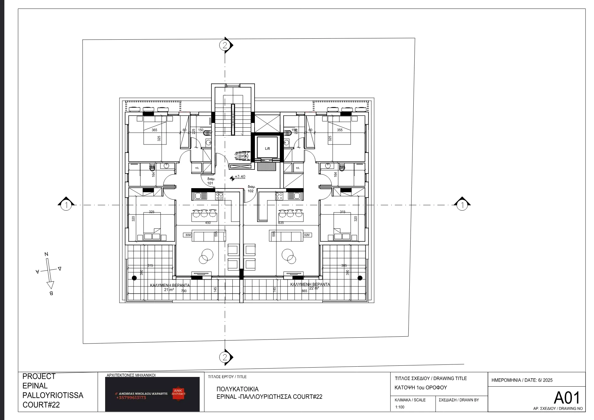
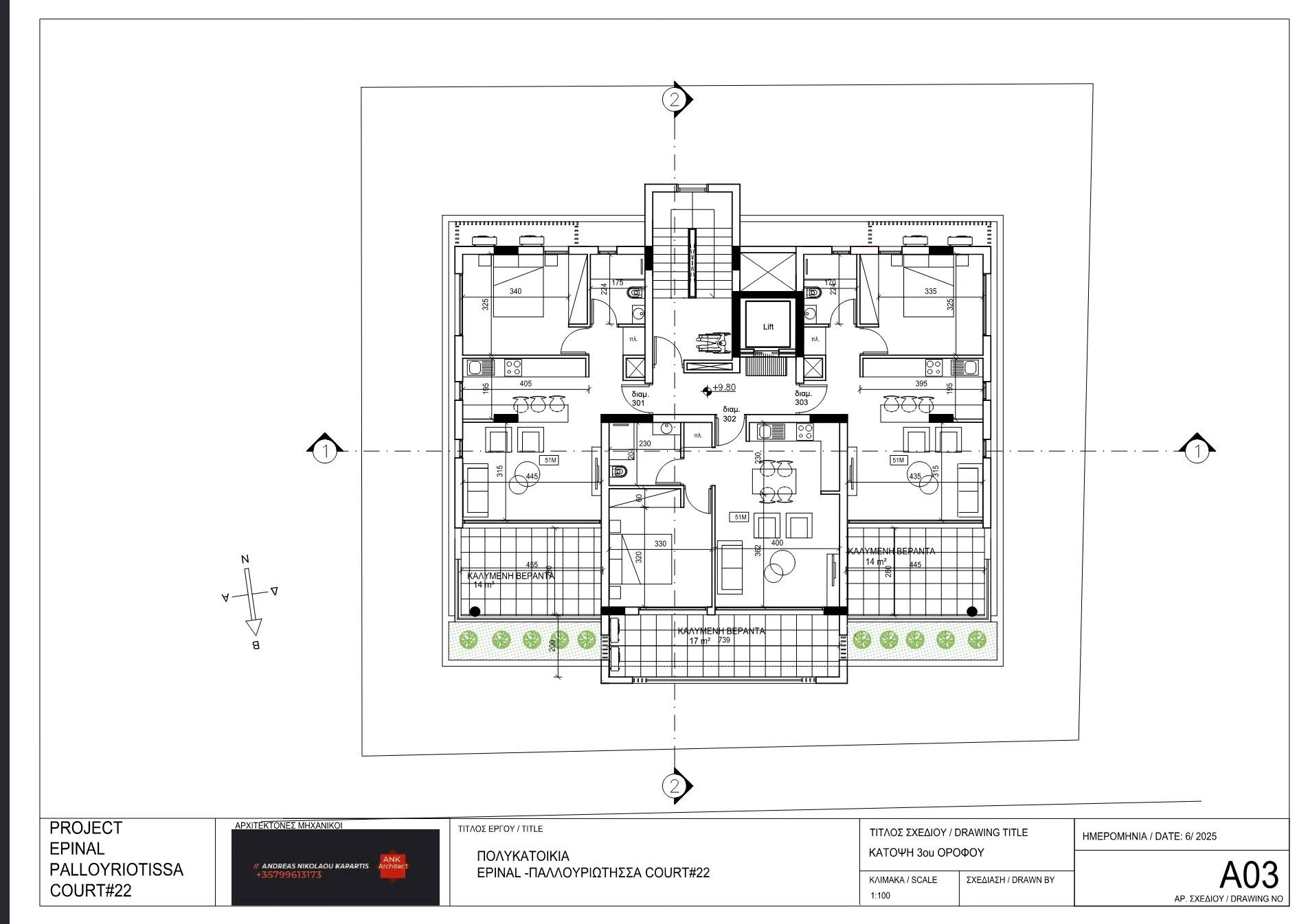
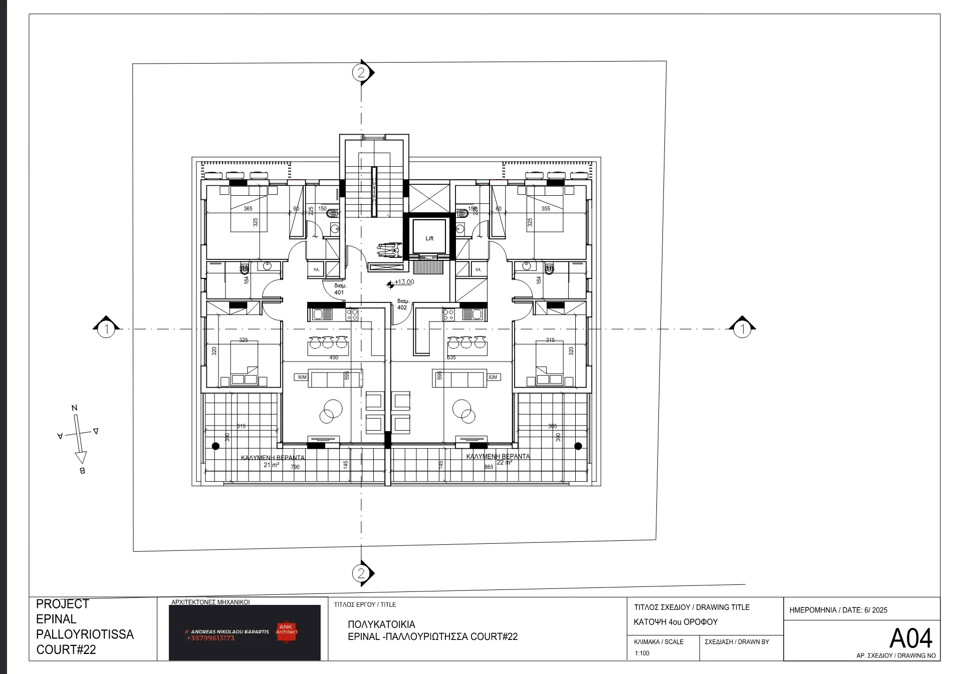
Το έργο αποτελείται από δέκα συνολικά διαμερίσματα, με τέσσερα διαμερίσματα δύο υπνοδωματίων στον 1ο και 4ο όροφο και έξι διαμερίσματα ενός υπνοδωματίου στον 2ο και 3ο όροφο. Όλα τα διαμερίσματα διαθέτουν καλυμμένο χώρο στάθμευσης και αποθήκη, ενώ στα διαμερίσματα δύο υπνοδωματίων το κυρίως υπνοδωμάτιο περιλαμβάνει en-suite. Οι λειτουργικές κατόψεις, οι άνετοι εσωτερικοί χώροι και οι καλυμμένες βεράντες προσφέρουν πρακτικότητα και άνεση, με έμφαση στη λεπτομέρεια και στα υλικά υψηλών προδιαγραφών. Η ανέγερση του έργου θα ξεκινήσει σύντομα, με εκτιμώμενο χρόνο παράδοσης 18 μήνες από την έναρξη των εργασιών, αποτελώντας μια εξαιρετική επιλογή τόσο για ιδιοκατοίκηση όσο και για επένδυση.







Για να παρέχουμε τις καλύτερες εμπειρίες, χρησιμοποιούμε τεχνολογίες όπως τα cookies για την αποθήκευση ή/και την πρόσβαση σε πληροφορίες συσκευής. Η συναίνεση σε αυτές τις τεχνολογίες θα μας επιτρέψει να επεξεργαζόμαστε δεδομένα όπως η συμπεριφορά περιήγησης ή μοναδικά αναγνωριστικά σε αυτόν τον ιστότοπο. Η μη συναίνεση ή η ανάκληση της συγκατάθεσης μπορεί να επηρεάσει αρνητικά ορισμένα χαρακτηριστικά και λειτουργίες.